LORD D1-02 + 3 roky bezplatný servis po registraci MADE IN GERMANY
Vestavná myčka 60cm s 5-ti mycími programy a BLDC motorem.
Kategorie| Výrobce: | LORD |
|---|---|
| Dostupnost: | skladem |
| Doporučená cena: | 11 990,00 Kč s DPH |
| EAN: | 4251539600339 |
Vestavná myčka nádobí LORD D1. Potěší vás i prodloužená pětiletá záruka. Myčka dokáže pojmout celkem 14 jídelních sad. Její vnitřní prostor je uspořádán tak, aby se každý kus nádobí ze sady dokonale umyl a usušil. Nádobí se dá rozdělit do celkem 3 úrovní. Navíc uvnitř najdete i příborovou zásuvku, která zajistí perfektně umyté příbory a zároveň více místa pro další, objemnější nádobí.
Můžete vybírat z 6 základních programů. Hodit se bude třeba rychlé mytí na 45 °C či naopak intenzivní mytí na 70 °C. Nechybí ani ekonomický program, který vaše nádobí umyje při 50 °C. Zvolit můžete také funkci pro z poloviny naplněnou myčku či pro předmytí nádobí.
Pokud nemáte žádné zvláštní požadavky, stačí jednoduše zvolit automatický program. Ten díky speciálním senzorům dokáže posoudit míru zašpinění nádobí. Dle toho zvolí ideální teplotu v rozmezí 45 až 65 °C. Zároveň spotřebuje jen takové množství vody, jaké je potřeba k perfektnímu umytí.
Myčka se zvládne sama zapnout třeba v noci
Ovládání spotřebiče vám usnadní přehledný LED displej. Ten zajistí snazší nastavení jednotlivých programů a nepřetržitou kontrolu nad zvolenými programy. Informuje například o čase zbývajícím do konce mycího programu. Upozorní vás také na nutnost doplnění leštidla či soli.
Začátek mytí si pomocí displeje můžete odložit až o 24 hodin. Myčka se tak sama zapne třeba v noci nebo když jste v práci. A jak poznáte ukončení programu? Spotřebič jej signalizuje pomocí světelného paprsku na podlahu a také zvukovým signálem.
Nehodám především ve vaší nepřítomnosti zabrání funkce AquaStop. Jde o mechanismus, který dokáže vaši domácnost ochránit před vytopením v případě poruchy spotřebiče či problému s přívodní hadicí.
Myčka LORD D1 je vybavena BLDC invertorovým motorem. Mezi jeho výhody patří výjimečná odolnost a úspornost, a to díky moderní bezuhlíkové technologii. Nemusíte se bát ani zbytečného hluku a vibrací. Hlučnost myčky je totiž jen 44 dB.
Praktický automatický program šetří energii i vaše peníze
Automatický program dokáže pomocí speciálních senzorů zhodnotit, jak moc je vaše nádobí špinavé. Po téhle analýze zvolí ideální teplotu a spotřebuje jen takové množství vody, které je nezbytné pro dokonalý výsledek.
Přehledný LED displej vám umožní neustálou kontrolu
Praktický LED displej usnadňuje všechna nastavení a umožňuje kontrolu nad zvolenými programy. Informuje o čase, který zbývá do konce mytí i o nutnosti doplnit leštidlo nebo sůl.
Myčka D1-02
- Spotřeba vody: 9,5 l
- Spotřeba elektřiny: 95 kWh/100 cyklů
- Hlučnost: 44 dB(B)
- Kapacita: 14 jídelních sad
- Programy: Rychlé mytí 45 °C, Intenzivní 70 °C, Ekonomický 50 °C, Auto 45–65 °C, Jemný 40 °C, Hygiene
Kategorie: Myčka nádobí
Způsob umístění: Vestavný spotřebič
Energetická třída: E
Spotřeba energie: 95 kWh/100 cyklů
Počet jídelních sad: 14 sad (3. stupeň plnění)
Spotřeba vody: 9,5 l/cyklus
Hlučnost: 44 dB(B)
Napětí: 220-240 V
Frekvence: 50 Hz
Systém samočistícího filtru s trojitým vlnitým filtrem
Displej: LED
Způsob ovládání: tlačítka
Odložení startu až: 24 h
Akustický indikátor konce cyklu
Info-Light (paprsek na podlaze)
Senzor plnění
Dětská pojistka
Vícenásobná ochrana proti poškození vodou
Materiál dveří/víka : nerezová ocel
Barva: BÍLÁ
Jedná se o vestavný spotřebič, čelní dvířka nejsou součástí dodávky.
Zaregistrujte si bezplatný servis ZDE
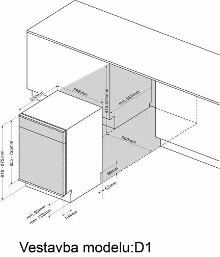
Rozměry výrobku:
Šířka: 59,8 cm
Výška: 81,5 cm
Hloubka: 55 cm
Hmotnost: 35,8 kg
Rozměry balení:
Šířka: 66 cm
Výška: 88 cm
Hloubka: 67 cm
Hmotnost: 38 kg
Související zboží
SklademPRO5 Čistič na nerez 300 mlČistič na nerezové povrchy, balení 300 ml.Čistič na nerez 300 ml107 bez DPH129 Kč
SklademPRO5 Čistič na pračky a myčky 250 gČistič na pračky a myčky, balení 250 g.Čistič na pračky a myčky 250 g107 bez DPH129 Kč


















